Vissza a kezdőlapra
Digitális Közterületi Műszaki Térkép



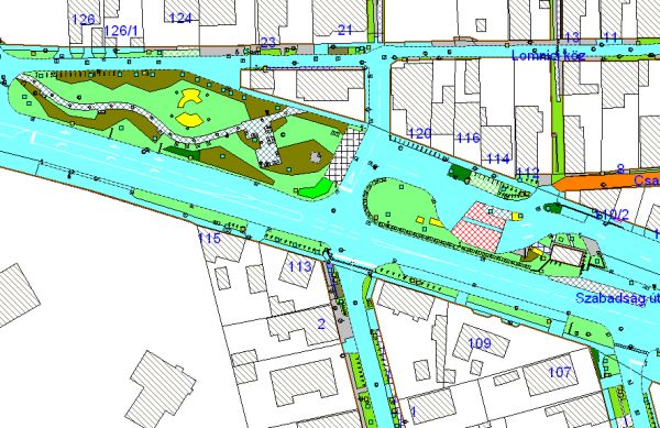
A digitális közműalaptérkép hagyományos közterületi adattartalmát az igényeknek megfelelően tovább bővíthetjük a közterületen található építmények határoló vonalaival, a különböző burkolattípusok hozzárendelésével vagy a közterületi objektumok más attribútumadataival. Az út- és járdakataszter létrehozásával egyszerűen lekérdezhető a különböző burkolatú közterületek nagysága, ezzel meghatározhatjuk a burkolattal ellátott utak, járdák területét a statisztikai összesítésekhez vagy a zöldfelületek és a parkosított területek nagyságát a költségvetés kiszámításához.

A DigiKom Kft. több településen készít Digitális Közterületi Műszaki Térképet, amelynek alapja az aktuális földmérési alaptérkép, amely teljes körűen tartalmazza a közterületek felszíni létesítményeit és igény szerint tartalmazhatja a föld alatti közmű létesítményeket is. Legfontosabb ismérve, hogy a területtel rendelkező felszíni elemek (útfelületek, járdák, burkolattípusok stb.) zárt idomként (felületként) kezelhetők és így az ingatlankataszter, az út és járdafelület karbantartás és üzemeltetés részére pontos terület információk nyerhetők.
A
DigiKom Kft. geodéziai mérőcsoportjai a földmérés szigorú előírásait figyelembe véve, a legkorszerűbb mérési technológiával végzik a felmérést (GPS, elektronikus tahimetria), az irodai feldolgozó személyzet pedig a térképezést. Az így készülő digitális térképmű a településirányítás térinformatikai alapját képezi.

A közterületi adattartalomban megjelenő fák adatainak feldolgozásával előállíthatjuk a település fakataszterét. A zöldfelületek és a fakatasztert együttesen hatékonyan segíti a környezetvédelmi feladatok megoldását.

A közterületi adattartalom nyilvántartásával lehetőség van az eddig manuálisan, papírlapokon nyilvántartott közterületfoglalásokx illetve útburkolatbontások nyilvántartására. A burkolathatárok és a kiemelt szegélyek vizsgálatával megtervezhető az akadálymentes közlekedés biztosítása.